黄瓜APP视频下载,黄瓜视频黄色下载,黄瓜视频网站入口,黄瓜视频免费看片

合肥黄瓜APP视频下载科技集團有限公司

產品中心

產品中心

Product center

聯係黄瓜APP视频下载
聯係電話
0551-62572111
  • KRH 聯鎖鎧裝機
  • KRH 聯鎖鎧裝機
  • KRH 聯鎖鎧裝機
  • KRH 聯鎖鎧裝機
  • KRH 聯鎖鎧裝機

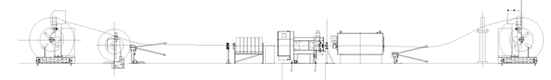
KRH 聯鎖鎧裝機

用於鋁合金黄瓜视频黄色下载聯鎖鎧裝。
技術參數
設備簡圖
案例展示
在線留言

技術參數

機型
Type
料帶寬度(mm)
Width of strip
帶厚度(mm)
Thickness of strip
鎧纜外徑(mm)
Dia. of cable
最大轉速(rpm)
Max. rotation speed
KRH-50 9.5~15 0.5~1 50 1000
KRH-100 9.5~19 100 800
KRH-130  9.5~25.4 0.5~1.2 130 700

設備簡圖

KRH 聯鎖鎧裝機

案例展示

在線留言

點擊圖片刷新
捷瑞數字 製作維護
網站地圖